Kaufhaus Müllerstraße


Visualisierung von der Kreuzung Müllerstraße, Schulstraße
Visualisierung von der Kreuzung Müllerstraße, Schulstraße


Bestandsfoto von der Kreuzung Müllerstraße, Schulstraße
Bestandsfoto von der Kreuzung Müllerstraße, Schulstraße


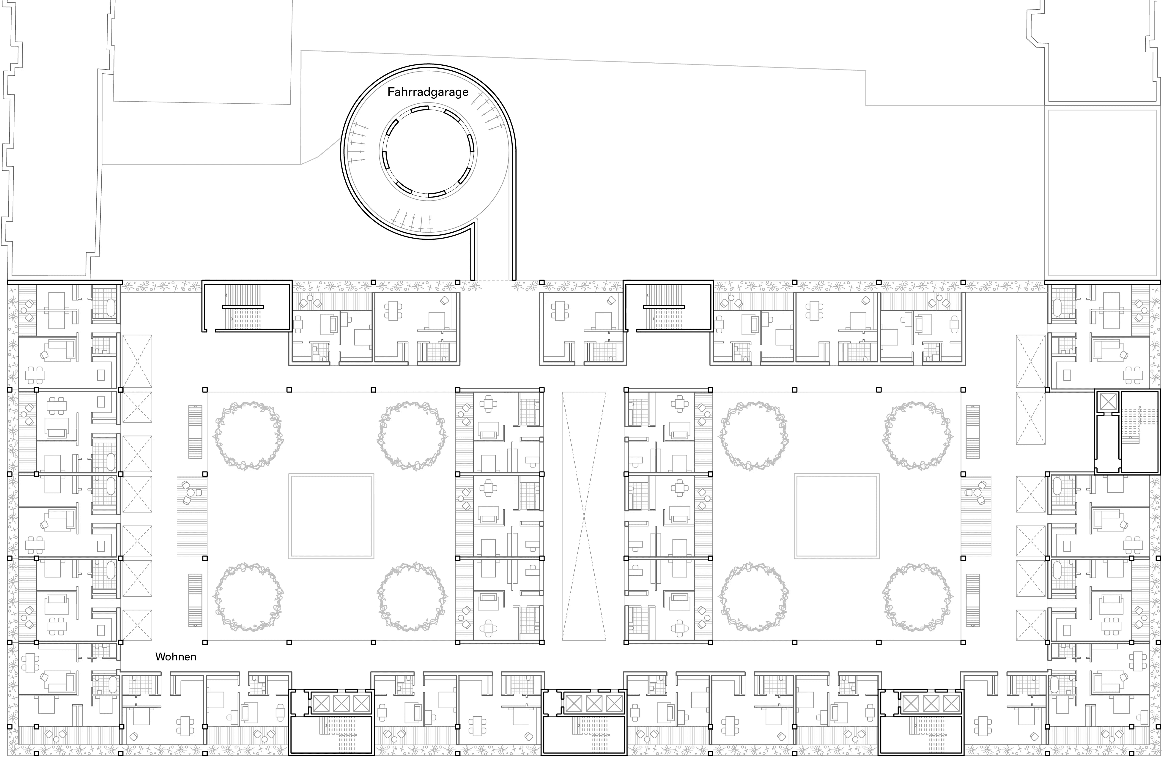
Grundriss Wohngeschoss mit großzügigen Innenhöfen und Laubengängen
Grundriss Wohngeschoss mit großzügigen Innenhöfen und Laubengängen


Visualisierung Loggia mit Grünstreifen zur Straße
Visualisierung Loggia mit Grünstreifen zur Straße


Ansicht von der Müllerstraße
Ansicht von der Müllerstraße


Schnitt Längs - mit zweigeschossigen Zonen, Oberlichtern, Innenhof, Laubengängen und Atrien
Schnitt Längs - mit zweigeschossigen Zonen, Oberlichtern, Innenhof, Atrien und Laubengängen


Detailansicht und -schnitt Sockel
Detailansicht und -schnitt Sockel


Detailansicht und -schnitt oberer Abschluss
Detailansicht und -schnitt oberer Abschluss
Kaufhaus Müllerstraße
Müllerstraße 25
13353 Wedding Berlin
BGF: 45.700m2
Entwurf 2024
Eva Girschik und Marius Druyen
Planungsumfang:
Konzepte Retail und Wohnen, Entwurfsplanung mit Vertiefungsteil
Kaufhaus Müllerstraße
Müllerstraße 25
13353 Wedding Berlin
BGF: 45.700m2
Entwurf 2024
Eva Girschik und Marius Druyen
Planungsumfang:
Konzepte Retail und Wohnen, Entwurfsplanung mit Vertiefungsteil
Umnutzung eines ehemaligen Kaufhauses
Umnutzung eines ehemaligen Kaufhauses
Der Karstadt an der Müllerstraße in Berlin Wedding ist eines von vielen Kaufhäusern, welches geschlossen werden soll. Das obsolet werden dieser Einkaufsstrukturen beschäftigt viele Fachleute schon länger. Die Umnutzung dieser monofunktionalen Giganten scheint eine der großen Bauaufgaben unserer Zeit. Der Erhalt ist im Sinne einer ökologischen Herangehensweise beinahe unabdinglich und essenziell.
Der Entwurf stützt sich genau auf diesen Erhalt. Die tragenden Strukturen werden fast vollständig erhalten und neue Strukturen, soweit möglich in Holz konstruiert. Aus diesem ökologischen Ansatz, dem Erhalt der grauen Energie, ziehen wir ebenso die Erscheinung des Baukörpers, welcher durch die horizontalen Unterzug-Bänder charakterisiert wird. Um die entstehende massive Kubatur zu gliedern werden Fassadenstützen in zweiter Hierarchie gesetzt und eine vertikale Gliederung ergänzt. Die Erdgeschosszone wird reaktiviert und bleibt öffentlich, die oberen Geschosse werden zu Wohnungen umgenutzt.
Der Karstadt an der Müllerstraße in Berlin Wedding ist eines von vielen Kaufhäusern, welches geschlossen werden soll. Das obsolet werden dieser Einkaufsstrukturen beschäftigt viele Fachleute schon länger. Die Umnutzung dieser monofunktionalen Giganten scheint eine der großen Bauaufgaben unserer Zeit. Der Erhalt ist im Sinne einer ökologischen Herangehensweise beinahe unabdinglich und essenziell.
Der Entwurf stützt sich genau auf diesen Erhalt. Die tragenden Strukturen werden fast vollständig erhalten und neue Strukturen, soweit möglich in Holz konstruiert. Aus diesem ökologischen Ansatz, dem Erhalt der grauen Energie, ziehen wir ebenso die Erscheinung des Baukörpers, welcher durch die horizontalen Unterzug-Bänder charakterisiert wird. Um die entstehende massive Kubatur zu gliedern werden Fassadenstützen in zweiter Hierarchie gesetzt und eine vertikale Gliederung ergänzt. Die Erdgeschosszone wird reaktiviert und bleibt öffentlich, die oberen Geschosse werden zu Wohnungen umgenutzt.
© 2026 Marius Druyen | Architekt
TEL
ADDRESSE
© 2026 Marius Druyen | Architekt